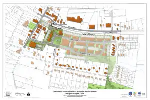
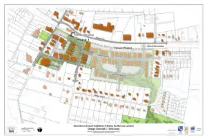
Downtown Crozet Initiative Illustration
Dialogue + Design facilitated, coordinated and provided design assistance for a community-driven design effort in Crozet, Virginia for the transformation of a twenty-acre in downtown Crozet in 2015. The goal for the effort was to transform this former industrial site into an accessible, successful and vibrant center for downtown Crozet through through public meetings, committee meetings, design coordination, and additional planning.
For a more information, see this article in C’ville Tomorrow, visit the project page, or view the Final Report for the Downtown Crozet Initiative.






