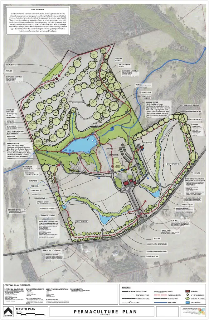
Permaculture Plan for 80-acre site in Central Virginia

Dialogue + Design completed the permaculture design for this 80 acre farm in 2014. The design featured strategies including intensive rotational grazing, soil regeneration, medicine plants, keyline design, swales as well as fruit, nut, and native plant specifications. For more detailed information, see the Planning Document.

Permaculture Plan for 80-acre site in central Virginia
Permaculture Plan for 80-acre site in central Virginia
Permaculture Plan for 80-acre site in central Virginia
Permaculture Plan for 80-acre site in central Virginia